Bilocale in vendita

Vigevano, Via Bereguardo
€ 115.000
2 locali 2 locali
75 Mq 75 Mq
1 bagno 1 bagno

Bilocale in vendita

Vigevano, Via Bereguardo

Descrizione annuncio

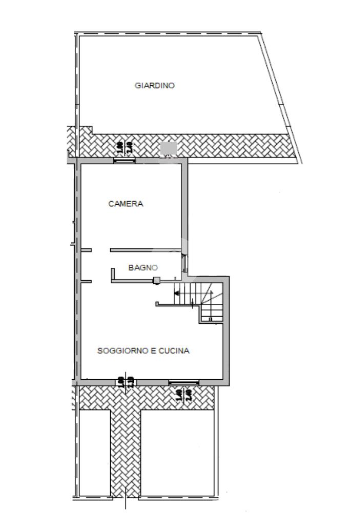
Via Bereguardo – VIGEVANO (PV) : In un contesto residenziale proponiamo, un BILOCALE DA RISTRUTTURARE, con giardino privato.

Il comune è ben collegato a Milano tramite i mezzi ferroviari, e con autobus di linea per le zone urbane e ed extra urbane.
Vigevano è un comune situato nella provincia di Pavia, in Lombardia. Immersa nella Lomellina nord-orientale, separata da Milano dal Ticino, Vigevano è raggiungibile con una trentina di minuti di treno dal capoluogo lombardo, nel cuore della città potete ammirare Piazza Ducale, tradizionalmente nota come la più bella piazza d’Italia. Costruita per volere di Ludovico il Moro su disegno di Leonardo Da Vinci tra il 1492 ed il 1494, è a pianta rettangolare, racchiusa su tre lati da edifici porticati e sul quarto lato dalla facciata della cattedrale. Per gli appassionati di escursioni naturalistiche, il comune è compreso interamente nel Parco lombardo del Ticino.

L'appartamento risulta essere così composto : L’ingresso si apre direttamente sulla zona living con cucina a vista, un ambiente unico e luminoso pensato per accogliere sia l’area relax sia quella dedicata ai pasti, con affaccio diretto verso l’esterno.

Dal soggiorno si accede infatti al giardino privato, che rappresenta una naturale estensione della casa: uno spazio riservato ideale per pranzare all’aperto, creare un angolo verde o semplicemente godersi momenti di relax.

Proseguendo dalla zona giorno si raggiunge il disimpegno che conduce al bagno finestrato con box doccia ed infine la camera da letto, pensata per garantire privacy e comfort.

Inoltre, l’immobile è dotato di infissi in PVC con doppi vetri, porta blindata e predisposizione per l'aria condizionata.

L’immobile è stato appena ristrutturato e si presenta in condizioni pari al nuovo con pavimento in grès porcellanato effetto parquet in tutti gli ambienti ; attualmente sono in fase di ultimazione gli ultimi lavori di rifinitura, che completeranno l’abitazione rendendola pronta per essere abitata.

'Le immagini sono state ritoccate a scopo illustrativo e non costituiscono un elemento contrattuale'

VALUTAZIONI GRATUITE.
Ogni agenzia ha un proprio titolare ed è autonoma. Le informazioni non costituiscono elemento contrattuale.
Presso la nostra agenzia è possibile, su richiesta, ricevere una consulenza gratuita grazie ai professionisti Kiron ed accedere ad un’ampia gamma di prodotti creditizi e assicurativi.

Mostra tutto

Nelle vicinanze

Trasporto pubblico Trasporto pubblico
stazione di Vigevano
stazione di Vigevano
1,4 Km
Trasporto pubblico
1,4 Km
Scuole Scuole
Scuole
590 m
Scuola elementare Edmondo De Amicis
720 m
I.P.S.I.A. Roncalli
780 m
I.T.I.S. "G. Caramuel"
1,0 Km
Scuola Primaria
1,3 Km
Farmacia Farmacia
Farmacia Cornalba
1,6 Km
Farmacia Vidari
1,6 Km
Farmacia Scevola
1,7 Km
Farmacia Bertazzoni
1,7 Km
Farmacia Badalla
1,8 Km
Ospedali Ospedali
Ospedali
1,1 Km
Pronto Soccorso Ospedale Civile Vigevano
1,1 Km
Istituto Clinico Beato Matteo
1,3 Km
Supermercati Supermercati
Supermercati
520 m
Lidl
870 m
LD market
2,0 Km
Esselunga
2,3 Km
Negozi Negozi
Carrefour Express
1,3 Km
Panperfocaccia
1,3 Km
Negozi
1,4 Km
OVS
1,4 Km
SUGAR s.a.s.
1,5 Km
Bar Bar
Bar
770 m
Bar da Gerardo
870 m
Cube
1,4 Km
Bar Ponte della Giacchetta
1,5 Km
Coffe Time
1,7 Km
Ristoranti Ristoranti
Trattoria Podazzaro
1,5 Km
Rinascimento
1,6 Km
Ristorante Rococò
1,6 Km
Albachiara
1,7 Km
Vecchia Vigevano
1,8 Km
Mostra tutto

Caratteristiche

Rif.:
61209824
Piano:
Terra con giardino
Camere da letto:
1
Arredamento:
Assente
Condizionamento:
Predisposizione impianto
Ascensore:
No
Mostra tutto
Prezzo Prezzo
€ 115.000
Rata mutuo Rata mutuo
€ 545 / mese
Spese annue Spese annue
€ 0
Proponi il tuo prezzoProponi il tuo prezzo

Classe Energetica

E
E
E
E
E
E
E
E
E
EP globale non rinnovabile:
263.80 kW h/m² anno
EP globale rinnovabile:
106.40 kW h/m² anno
EP invernale del fabbricato:
EP estiva del fabbricato:
Anno di costruzione:
2025
Riscaldamento:
Autonomo
Tipo impianto:
A radiatori
Tipo alimentazione:
Metano

Ti interessa visionare l'immobile?

Fissa un appuntamento  Fissa un appuntamento

Richiedi informazioni

Clicca su Leggi per aprire l'informativa
* Questi campi sono obbligatori

Calcola il tuo mutuo

Semplice e senza impegno
Anticipo

( % )
Mutuo

( % )

pochi semplici passi

inserisci i tuoi dati
Questionario completato
Grazie per aver richiesto un appuntamento senza impegno con un nostro Consulente del Credito e Assicurativo.

Hai inserito correttamente tutti i dati necessari e a breve riceverai una e-mail con un link da convalidare per inviare i tuoi dati.
Affiliato
Case Milano Ovest Srl
P.zza Della Repubblica, 13 20083 Gaggiano (MI)

Il nostro staff


  • Kyrylo Broyanovskyy
    Responsabile

  • Manuel Cassi
    Collaboratore

  • Gaya Secchi
    Coordinatrice
P.zza Della Repubblica, 13 20083 Gaggiano (MI)
Zona: Gaggiano-Rosate-Vermezzo-Calvignasco-Noviglio
Mostra su mappa
Orari: Lunedì - Venerdì 09.00/20.00 - Sabato 09.00/17.00
Affiliato
Case Milano Ovest Srl
P.zza Della Repubblica, 13 20083 Gaggiano (MI)

2026 Tecnocasa Franchising S.p.A. - P. IVA 08365160152 - Via Monte Bianco 60/A 20089 Rozzano (MI). Ogni agenzia ha un proprio titolare ed è autonoma. Privacy policy | Policy utilizzo | Cookie policy